Contact
Cell:
+95 (0) 123 456 789
office@yourdomain.com
Locations
New York
London
Berlin
Follow us
amena@mimardesignstudio.com
Follow us
Home
Services
Kitchen Design
Bathroom Design
Architectural Design
Interior Mood Boards
Landscape
3D Layout
Gallery
Plans
Home
Services
Kitchen Design
Bathroom Design
Architectural Design
Interior Mood Boards
Landscape
3D Layout
Gallery
Plans
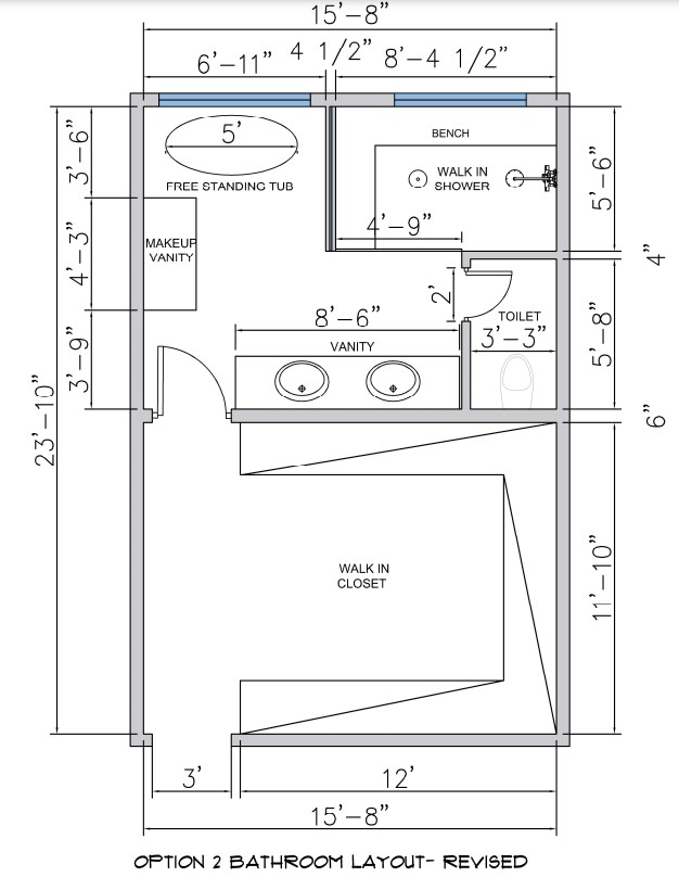
Bath layout
Bathroom layout design for elizabeth USA
→
WhatsApp
Facebook
Instagram